-
- Tổng tiền thanh toán:
Bồn tắm yếm inax FBV-1702S đến từ thương hiệu thiết bị vệ sinh inax
- Thuận tiện cho việc lắp đặt, không cần ốp gạch bồn tắm yếm FBV-1702SR, FBV-1702SL của inax
- Tiết kiệm không gian phù hợp với phòng cho nhà riêng các dự án căn hộ chung cư cao cấp.
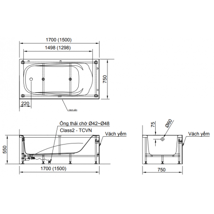
Bản vẽ kỹ thuật bồn tắm chân yếm INAX FBV-1702S

Điện máy TTG thành lập từ năm 2018 trải qua 6 năm
Bồn tắm yếm inax FBV-1702S đến từ thương hiệu thiết bị vệ sinh inax
- Thuận tiện cho việc lắp đặt, không cần ốp gạch bồn tắm yếm FBV-1702SR, FBV-1702SL của inax
- Tiết kiệm không gian phù hợp với phòng cho nhà riêng các dự án căn hộ chung cư cao cấp.
Bản vẽ kỹ thuật bồn tắm chân yếm INAX FBV-1702S
